Tenancy Information: Rent: £100.00 per person per week (excluding utilities) Rent + UniHomes utilities: £130.00 per person per week Security Deposit: £200.00 per person Tenancy Type: Cohesive – Joint & Several Tenancy Dates: 2nd July 2026 – 29th June 2027 Property Rent Schedule (Monthly): £1,300.00 PCM (£433.33 per calendar month per tenant) Management: Property managed and rent collected by Broomhill Property Shop – Glossop Road Applicants: All tenants in the household must be full-time students, meet the student criteria, or intend to be full-time students at the start of the tenancy. This requirement is due to Ground 4A, Section 8, Schedule 2 of the Housing Act 1988, which will be used to regain possession of the property on 29th June 2027. Council Tax: Tenants are responsible for council tax payments if not exempt as qualifying students. Details on exemptions can be found on the Sheffield City Council website. Property Information Property Type: House - Mid Terrace (Stone) Furnishing: Fully furnished and typically includes bed, mattress, wardrobe, desk, desk chair, drawers, blinds, doesn’t include bedding/ decorative items. Bedrooms: 3 Bathrooms: 1 Living room: 1 Kitchen: 1 All room dimensions to be detailed on the floorplan. Appliances: Fridge, Freezer, Microwave, Gas hob, Washing machine. Distance to University: 12 Minute walk. Distance to local shops: 7 minute walk to Morrisons, Fulwood Road. Parking: Permit parking Gas Supply: Mains gas with combi boiler. Electricity Supply: Mains electric. Water Supply: Mains water with no meter. Sewerage: Mains Fed. Mobile & Internet coverage: signal strength and coverage can be found using the checker below. Mobile - https://checker.ofcom.org.uk/en-gb/mobile-coverage Internet - https://www.ofcom.org.uk/phones-and-broadband/coverage-and-speeds/ofcom-checker EPC: E - 51 Council tax band: B
Tenancy Information: Rent: £100.00 per person per week (excluding utilities) Rent + UniHomes utilities: £130.00 per person per week Security Deposit: £200.00 per person Tenancy Type: Cohesive – Joint & Several Tenancy Dates: 2nd July 2026 – 29th June 2027 Property Rent Schedule (Monthly): £1,300.00 PCM (£433.33 per calendar month per tenant) Management: Property managed and rent collected by Broomhill Property Shop – Glossop Road
Applicants: All tenants in the household must be full-time students, meet the student criteria, or intend to be full-time students at the start of the tenancy. This requirement is due to Ground 4A, Section 8, Schedule 2 of the Housing Act 1988, which will be used to regain possession of the property on 29th June 2027.
Council Tax: Tenants are responsible for council tax payments if not exempt as qualifying students. Details on exemptions can be found on the Sheffield City Council website.
Property Information
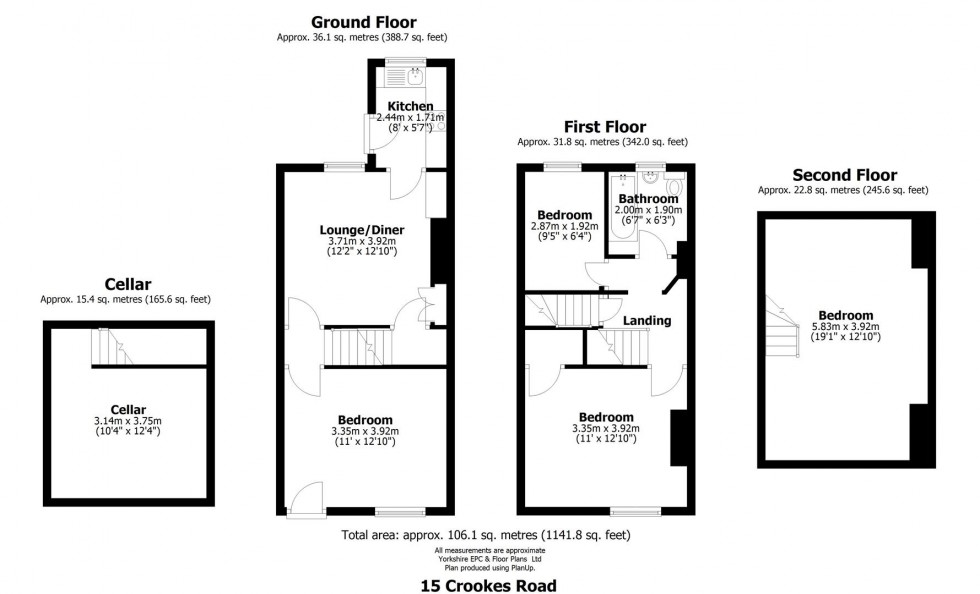
Property Type: House - Mid Terrace (Stone) Furnishing: Fully furnished and typically includes bed, mattress, wardrobe, desk, desk chair, drawers, blinds, doesn’t include bedding/ decorative items. Bedrooms: 3 Bathrooms: 1 Living room: 1 Kitchen: 1 All room dimensions to be detailed on the floorplan.
Appliances: Fridge, Freezer, Microwave, Gas hob, Washing machine. Distance to University: 12 Minute walk. Distance to local shops: 7 minute walk to Morrisons, Fulwood Road. Parking: Permit parking Gas Supply: Mains gas with combi boiler. Electricity Supply: Mains electric. Water Supply: Mains water with no meter. Sewerage: Mains Fed.
Mobile & Internet coverage: signal strength and coverage can be found using the checker below. Mobile - https://checker.ofcom.org.uk/en-gb/mobile-coverage Internet - https://www.ofcom.org.uk/phones-and-broadband/coverage-and-speeds/ofcom-checker