Tenancy Information: Rent: £110.00 per person per week (excluding utilities) Rent + UniHomes utilities: £134.00 per person per week Security Deposit: £200.00 per person Tenancy Type: Cohesive – Joint & Several Tenancy Dates: 2nd July 2026 – 29th June 2027 Property Rent Schedule (Monthly): £2,383.33 PCM (£476.66 per calendar month per tenant) Management: Property managed and rent collected by Broomhill Property Shop – Glossop Road Applicants: All tenants in the household must be full-time students, meet the student criteria, or intend to be full-time students at the start of the tenancy. This requirement is due to Ground 4A, Section 8, Schedule 2 of the Housing Act 1988, which will be used to regain possession of the property on 29th June 2027. Council Tax: Tenants are responsible for council tax payments if not exempt as qualifying students. Details on exemptions can be found on the Sheffield City Council website. Property Information Property Type: House / Mid-Terrace (Brick). Furnishing: Fully furnished and typically includes bed, mattress, wardrobe, desk, desk chair, drawers, blinds, doesn't include bedding/ decorative items. Bedrooms: 5 Bathrooms: 2 x Bathrooms and 1 x W.C Living room: 0 Kitchen/Diner: 1 Basement: 1 All room dimensions to be detailed on the floorplan. Appliances: Fridge, Freezer, Microwave, Gas hob, Washing machine, dishwasher. Distance to University: 7 minute walk to University. Distance to local shops: 4 minutes walk to Co-op, Glossop Road Parking Arrangement: private parking for 2 cars at the rear of the property. Gas Supply: Mains gas with combi boiler. Electricity Supply: Mains electric. Water Supply: Mains water with no meter. Sewerage: Mains Fed. Mobile & Internet coverage: signal strength and coverage can be found using the checker below. Mobile - https://checker.ofcom.org.uk/en-gb/mobile-coverage Internet - https://www.ofcom.org.uk/phones-and-broadband/coverage-and-speeds/ofcom-checker EPC: D - 58 Council tax band: C
Rent: £110.00 per person per week (excluding utilities) Rent + UniHomes utilities: £134.00 per person per week Security Deposit: £200.00 per person Tenancy Type: Cohesive – Joint & Several Tenancy Dates: 2nd July 2026 – 29th June 2027 Property Rent Schedule (Monthly): £2,383.33 PCM (£476.66 per calendar month per tenant) Management: Property managed and rent collected by Broomhill Property Shop – Glossop Road
Applicants: All tenants in the household must be full-time students, meet the student criteria, or intend to be full-time students at the start of the tenancy. This requirement is due to Ground 4A, Section 8, Schedule 2 of the Housing Act 1988, which will be used to regain possession of the property on 29th June 2027.
Council Tax: Tenants are responsible for council tax payments if not exempt as qualifying students. Details on exemptions can be found on the Sheffield City Council website.
Property Information
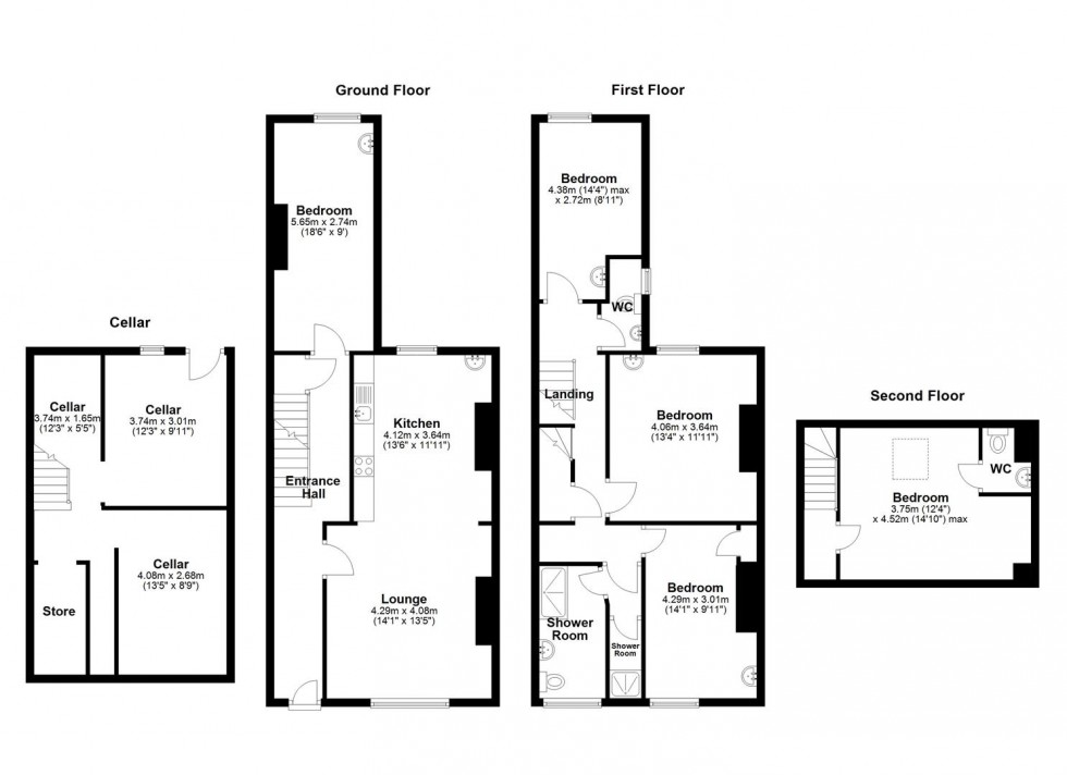
Property Type: House / Mid-Terrace (Brick). Furnishing: Fully furnished and typically includes bed, mattress, wardrobe, desk, desk chair, drawers, blinds, doesn't include bedding/ decorative items. Bedrooms: 5 Bathrooms: 2 x Bathrooms and 1 x W.C Living room: 0 Kitchen/Diner: 1 Basement: 1 All room dimensions to be detailed on the floorplan.
Appliances: Fridge, Freezer, Microwave, Gas hob, Washing machine, dishwasher. Distance to University: 7 minute walk to University. Distance to local shops: 4 minutes walk to Co-op, Glossop Road Parking Arrangement: private parking for 2 cars at the rear of the property. Gas Supply: Mains gas with combi boiler. Electricity Supply: Mains electric. Water Supply: Mains water with no meter. Sewerage: Mains Fed.
Mobile & Internet coverage: signal strength and coverage can be found using the checker below. Mobile - https://checker.ofcom.org.uk/en-gb/mobile-coverage Internet - https://www.ofcom.org.uk/phones-and-broadband/coverage-and-speeds/ofcom-checker