STUDENT ACCOMMODATION Rent: £104.00 pp/pw, excluding utilities & council tax Rent Schedule: Payable in 12 equal Monthly Instalments in advance Security Deposit: £200 per person, total £1000.00 Bills Package: Unihomes package available for gas, electricity, water, internet & TV licence (optional) Council Tax: Band A - not applicable for full-time students EPC Rating: E Tenancy Dates: 3rd July 2026 – 30th June 2027 Management: Managed by Broomhill Property Shop, 138 Whitham Road, Sheffield S10 2SR Property Information Property Type: Brick Built Terrace House Location: A superior student house situated in the heart of Broomhill. On the doorstep to all the shops, restaurants, bars and amenities. This property is only a short walk to the University of Sheffield. Bedrooms:x5 double bedrooms Bathrooms: 1 x Shower Room with shower, WC & Basin, 1 x Shower room with just a shower & x1 WC with basin Living Room: 1 Kitchen: 1 Basement: 1 Furnishing: Fully furnished, each bedroom typically includes bed, wardrobe, desk, chair, chest of drawers Appliances: Microwave, Washing Machine, Tumble Dryer, Fridge /Freezer, Fridge, Electric Oven, Ceramic Hob, Vacuum Cleaner & TV Parking: Private parking for 2 small cars or 1 large car Utilities: Mains gas, electric, water & sewerage Heating: Gas central heating – Combi Boiler Room Dimensions: Please refer to floor plan Mobile/Broadband Coverage: Check via Ofcom - https://checker.ofcom.org.uk/ Applicants: All tenants must be full-time students at the start of the tenancy. This requirement is in accordance with the proposed new Ground 4A, Schedule 2, Section 8 of the Housing Act 1988, which will be used to regain possession of the property on 30th June 2027.
STUDENT ACCOMMODATION Rent: £104.00 pp/pw, excluding utilities & council tax Rent Schedule: Payable in 12 equal Monthly Instalments in advance Security Deposit: £200 per person, total £1000.00 Bills Package: Unihomes package available for gas, electricity, water, internet & TV licence (optional) Council Tax: Band A - not applicable for full-time students EPC Rating: E Tenancy Dates: 3rd July 2026 – 30th June 2027 Management: Managed by Broomhill Property Shop, 138 Whitham Road, Sheffield S10 2SR
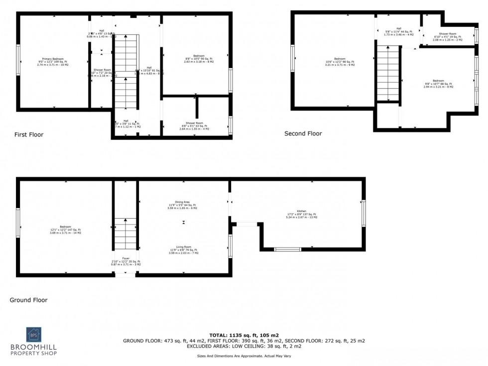
Property Information Property Type: Brick Built Terrace House Location: A superior student house situated in the heart of Broomhill. On the doorstep to all the shops, restaurants, bars and amenities. This property is only a short walk to the University of Sheffield. Bedrooms:x5 double bedrooms Bathrooms: 1 x Shower Room with shower, WC & Basin, 1 x Shower room with just a shower & x1 WC with basin Living Room: 1 Kitchen: 1 Basement: 1 Furnishing: Fully furnished, each bedroom typically includes bed, wardrobe, desk, chair, chest of drawers Appliances: Microwave, Washing Machine, Tumble Dryer, Fridge /Freezer, Fridge, Electric Oven, Ceramic Hob, Vacuum Cleaner & TV Parking: Private parking for 2 small cars or 1 large car Utilities: Mains gas, electric, water & sewerage Heating: Gas central heating – Combi Boiler Room Dimensions: Please refer to floor plan Mobile/Broadband Coverage: Check via Ofcom - https://checker.ofcom.org.uk/
Applicants: All tenants must be full-time students at the start of the tenancy. This requirement is in accordance with the proposed new Ground 4A, Schedule 2, Section 8 of the Housing Act 1988, which will be used to regain possession of the property on 30th June 2027.