STUDENT ACCOMMODATION Rent: £92.00 pp/pw, excluding utilities & council tax Rent Schedule: Payable in 12 equal Monthly Instalments in advance Security Deposit: £200 per person, total £1200.00 Bills Package: Unihomes package available for gas, electricity, water, internet & TV licence (optional) Council Tax: Band A - not applicable for full-time students EPC Rating: E Tenancy Dates: 3rd July 2026 – 30th June 2027 Tenancy Type: Cohesive – Joint & Several Management: Managed by Broomhill Property Shop, 138 Whitham Road, Sheffield S10 2SR Property Information Property Type: Stone Built Terrace House Location: Excellent student house in the centre of Crookes. Only a 20 minute walk to the University of Sheffield. Bedrooms: 6 Double Bedrooms Bathrooms: 1 x Shower room with Shower, Basin & WC, 1 x Shower room with Shower, 1 x separate WC & Basin, Living Room: 1 Kitchen: 1 Basement: 1 Garden: Small Rear garden Furnishing: Fully furnished, each bedroom typically includes bed, wardrobe, desk, chair, chest of drawers Appliances: Microwave, Washer dryer, Dishwasher, Fridge, Freezer, Electric oven, Ceramic hob, Vacuum cleaner & TV Parking: On-street (permit not required) Utilities: Mains gas, electric, water & sewerage Heating: Gas central heating – Combi Boiler Room Dimensions: Please refer to floor plan Mobile/Broadband Coverage: Check via Ofcom - https://checker.ofcom.org.uk/ Applicants: All tenants must be full-time students at the start of the tenancy. This requirement is in accordance with the proposed new Ground 4A, Schedule 2, Section 8 of the Housing Act 1988, which will be used to regain possession of the property on 30th June 2027.
STUDENT ACCOMMODATION Rent: £92.00 pp/pw, excluding utilities & council tax Rent Schedule: Payable in 12 equal Monthly Instalments in advance Security Deposit: £200 per person, total £1200.00 Bills Package: Unihomes package available for gas, electricity, water, internet & TV licence (optional) Council Tax: Band A - not applicable for full-time students EPC Rating: E Tenancy Dates: 3rd July 2026 – 30th June 2027 Tenancy Type: Cohesive – Joint & Several Management: Managed by Broomhill Property Shop, 138 Whitham Road, Sheffield S10 2SR
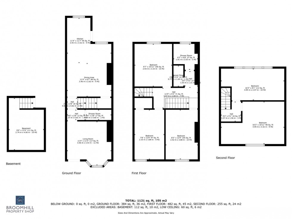
Property Information Property Type: Stone Built Terrace House Location: Excellent student house in the centre of Crookes. Only a 20 minute walk to the University of Sheffield. Bedrooms: 6 Double Bedrooms Bathrooms: 1 x Shower room with Shower, Basin & WC, 1 x Shower room with Shower, 1 x separate WC & Basin, Living Room: 1 Kitchen: 1 Basement: 1 Garden: Small Rear garden Furnishing: Fully furnished, each bedroom typically includes bed, wardrobe, desk, chair, chest of drawers Appliances: Microwave, Washer dryer, Dishwasher, Fridge, Freezer, Electric oven, Ceramic hob, Vacuum cleaner & TV Parking: On-street (permit not required) Utilities: Mains gas, electric, water & sewerage Heating: Gas central heating – Combi Boiler Room Dimensions: Please refer to floor plan Mobile/Broadband Coverage: Check via Ofcom - https://checker.ofcom.org.uk/
Applicants: All tenants must be full-time students at the start of the tenancy. This requirement is in accordance with the proposed new Ground 4A, Schedule 2, Section 8 of the Housing Act 1988, which will be used to regain possession of the property on 30th June 2027.