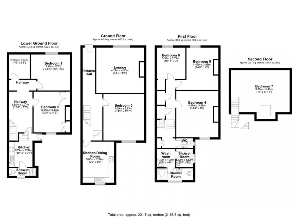
STUDENT ACCOMMODATION Rent: £102.00 pp/pw, excluding utilities & council tax Rent Schedule: Payable in 12 equal Monthly Instalments Security Deposit: £200 per person, total £1400.00 Bills Package: Unihomes package available for gas, electricity, water, internet & TV licence (optional) Council Tax: Band B - not applicable for full-time students EPC Rating: D Tenancy Dates: 3rd July 2026 – 30th June 2027 Tenancy Type: Cohesive – Joint & Several Management: Managed by Landlord Property Information Property Type: Stone built Terrace House Location: Excellent house in a popular location in the centre of Broomhill. This property is close to shops, bars and other amenities. Bedrooms: x7 double bedroom Bathrooms: x3 Shower rooms and x1 separate WC & basin Living Room: 1 Kitchen: 2 Garden: Small front Garden Furnishing: Fully furnished, each bedroom typically includes bed, wardrobe, desk, desk chair, chest of drawers Appliances: Microwave, Washing Machine, Dishwasher, Tumble Dryer, Fridge Freezer, Freezer, Fridge, Gas oven & hob and Vacuum cleaner Parking: Driveway parking located at the back of the property. Utilities: Mains gas, electric, water & sewerage Heating: Gas central heating – Combi Boiler Room Dimensions: Please refer to floor plan Mobile/Broadband Coverage: Check via Ofcom - https://checker.ofcom.org.uk/ Applicants: Must all be full-time students at the commencement of the tenancy. This requirement is due to Ground 4A, Section 8, Schedule 2 of the Housing Act 1988, which will be used to regain possession of the property on 30th June 2027.
STUDENT ACCOMMODATION Rent: £102.00 pp/pw, excluding utilities & council tax Rent Schedule: Payable in 12 equal Monthly Instalments Security Deposit: £200 per person, total £1400.00 Bills Package: Unihomes package available for gas, electricity, water, internet & TV licence (optional) Council Tax: Band B - not applicable for full-time students EPC Rating: D Tenancy Dates: 3rd July 2026 – 30th June 2027 Tenancy Type: Cohesive – Joint & Several Management: Managed by Landlord
Property Information Property Type: Stone built Terrace House Location: Excellent house in a popular location in the centre of Broomhill. This property is close to shops, bars and other amenities. Bedrooms: x7 double bedroom Bathrooms: x3 Shower rooms and x1 separate WC & basin Living Room: 1 Kitchen: 2 Garden: Small front Garden Furnishing: Fully furnished, each bedroom typically includes bed, wardrobe, desk, desk chair, chest of drawers Appliances: Microwave, Washing Machine, Dishwasher, Tumble Dryer, Fridge Freezer, Freezer, Fridge, Gas oven & hob and Vacuum cleaner Parking: Driveway parking located at the back of the property. Utilities: Mains gas, electric, water & sewerage Heating: Gas central heating – Combi Boiler Room Dimensions: Please refer to floor plan Mobile/Broadband Coverage: Check via Ofcom - https://checker.ofcom.org.uk/
Applicants: Must all be full-time students at the commencement of the tenancy. This requirement is due to Ground 4A, Section 8, Schedule 2 of the Housing Act 1988, which will be used to regain possession of the property on 30th June 2027.