STUDENT ACCOMMODATION Rent: £109.00 pp/pw - excluding utilities & council tax Rent Schedule: Payable in 12 equal Monthly Instalments Security Deposit: £200 per tenant. Total £2200.00 Bills Package: Unihomes package available for gas, electricity, water & TV licence (optional) Council Tax: Band F - not applicable for full-time students EPC Rating: E Tenancy Dates: 1st July 2026 – 30th June 2027 Tenancy Type: Cohesive – Joint & Several Management: Managed by Landlord Property Information Property Type: Stone Built Detached House Location: The house sits on the corner of Springhill/Crookesmoor Road, ideally located for many university locations. The main University sport facility (Goodwin Sports centre) is a 2-minute walk from the house, as are several of the university buildings, like the university arts tower. Bedrooms: x11 double bedrooms with a sink in each bedroom Bathrooms: x2 Shower Rooms each with shower, WC and basin, X1 single shower room with just shower and x1 separate W/C with basin Living Room: 1 Kitchen: 1 Garden: Large garden/patio area to enjoy and cycle storage available Furnishing: Fully furnished, each bedroom typically includes bed, wardrobe, desk, desk chair, chest of drawers Appliances: Fridge, fridge/freezer x2, dishwasher, tumble dryer, vacuum cleaner, washing machine, 2 cookers and microwave Parking: Off Street Private Parking for multiple cars Utilities: Mains gas, electric, water & sewerage Heating: Gas central heating – Combi Boiler Room Dimensions: Please refer to floor plan Mobile/Broadband Coverage: Check via Ofcom - https://checker.ofcom.org.uk/ Applicants: Must all be full-time students at the commencement of the tenancy. This requirement is due to Ground 4A, Section 8, Schedule 2 of the Housing Act 1988, which will be used to regain possession of the property on 30th June 2027.
STUDENT ACCOMMODATION Rent: £109.00 pp/pw - excluding utilities & council tax Rent Schedule: Payable in 12 equal Monthly Instalments Security Deposit: £200 per tenant. Total £2200.00 Bills Package: Unihomes package available for gas, electricity, water & TV licence (optional) Council Tax: Band F - not applicable for full-time students EPC Rating: E Tenancy Dates: 1st July 2026 – 30th June 2027 Tenancy Type: Cohesive – Joint & Several Management: Managed by Landlord
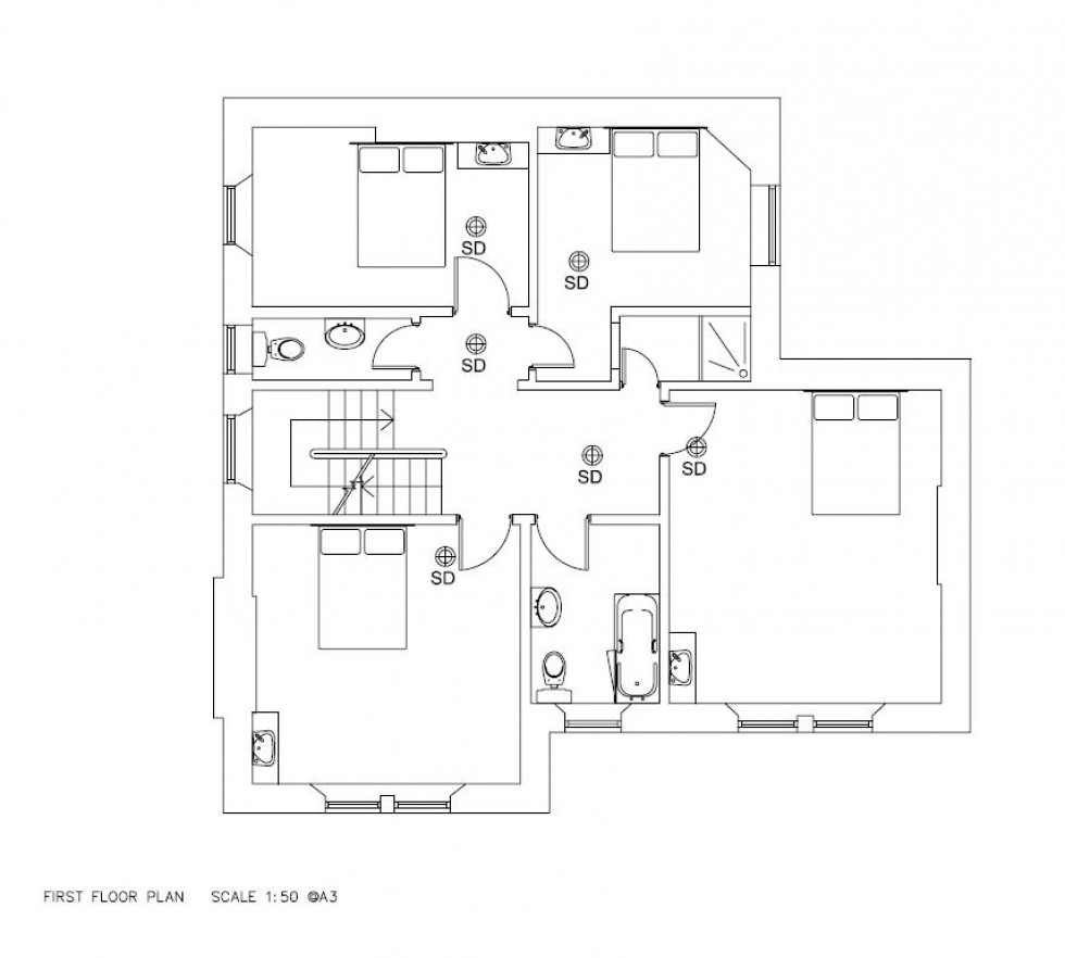
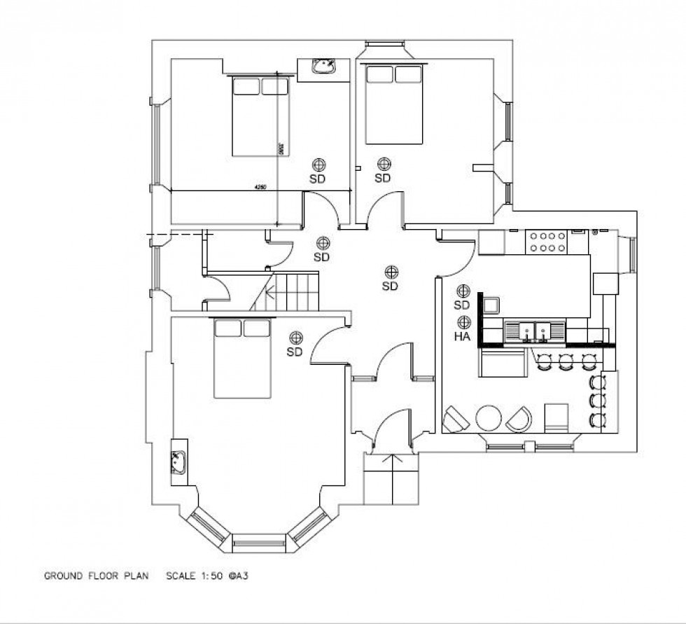
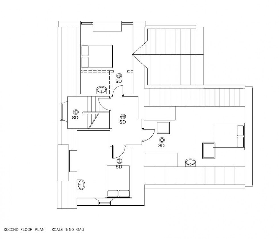
Property Information Property Type: Stone Built Detached House Location: The house sits on the corner of Springhill/Crookesmoor Road, ideally located for many university locations. The main University sport facility (Goodwin Sports centre) is a 2-minute walk from the house, as are several of the university buildings, like the university arts tower. Bedrooms: x11 double bedrooms with a sink in each bedroom Bathrooms: x2 Shower Rooms each with shower, WC and basin, X1 single shower room with just shower and x1 separate W/C with basin Living Room: 1 Kitchen: 1 Garden: Large garden/patio area to enjoy and cycle storage available Furnishing: Fully furnished, each bedroom typically includes bed, wardrobe, desk, desk chair, chest of drawers Appliances: Fridge, fridge/freezer x2, dishwasher, tumble dryer, vacuum cleaner, washing machine, 2 cookers and microwave Parking: Off Street Private Parking for multiple cars Utilities: Mains gas, electric, water & sewerage Heating: Gas central heating – Combi Boiler Room Dimensions: Please refer to floor plan Mobile/Broadband Coverage: Check via Ofcom - https://checker.ofcom.org.uk/
Applicants: Must all be full-time students at the commencement of the tenancy. This requirement is due to Ground 4A, Section 8, Schedule 2 of the Housing Act 1988, which will be used to regain possession of the property on 30th June 2027.