STUDENT ACCOMMODATION Rent: £85pp/pw, excluding utilities & council tax Rent Schedule: Payable in 12 equal Monthly Instalments Security Deposit: £250 per tenant. Total £1000.00 Bills Package: Unihomes package available for gas, electricity, water, internet & TV licence (optional) Council Tax: Band C - not applicable for full-time students EPC Rating: D Tenancy Dates: 1st July 2026 – 30th June 2027 Tenancy Type: Cohesive – Joint & Several Management: Managed by Landlord Property Information Property Type: Stone built Terrace House Location: Situated in the highly desirable area of Crookesmoor, only a short walk away from the University of Sheffield. Bedrooms: x4 double bedroom Bathrooms: WC & Basin + 1 x Bathroom with shower above bath, WC & basin Living Room: 1 Kitchen: 1 Basement: 1 Garden: Rear patio area Furnishing: Fully furnished, each bedroom typically includes bed, wardrobe, desk, desk chair, chest of drawers Appliances: Microwave, Washing Machine/ dryer, Fridge Freezer, Electric Cooker & Vacuum Cleaning Parking: On-street (permit required) Utilities: Mains gas, electric, water & sewerage Heating: Gas central heating – Combi Boiler Room Dimensions: Please refer to floor plan Mobile/Broadband Coverage: Check via Ofcom - https://checker.ofcom.org.uk/ Applicants: All tenants must be full-time students at the start of the tenancy. This requirement is in accordance with the proposed new Ground 4A, Schedule 2, Section 8 of the Housing Act 1988, which will be used to regain possession of the property on 30th June 2027.
STUDENT ACCOMMODATION Rent: £85pp/pw, excluding utilities & council tax Rent Schedule: Payable in 12 equal Monthly Instalments Security Deposit: £250 per tenant. Total £1000.00 Bills Package: Unihomes package available for gas, electricity, water, internet & TV licence (optional) Council Tax: Band C - not applicable for full-time students EPC Rating: D Tenancy Dates: 1st July 2026 – 30th June 2027 Tenancy Type: Cohesive – Joint & Several Management: Managed by Landlord
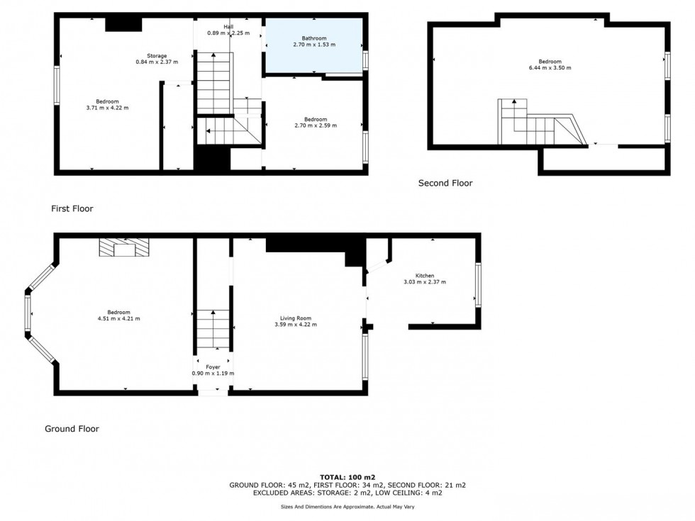
Property Information Property Type: Stone built Terrace House Location: Situated in the highly desirable area of Crookesmoor, only a short walk away from the University of Sheffield. Bedrooms: x4 double bedroom Bathrooms: WC & Basin + 1 x Bathroom with shower above bath, WC & basin Living Room: 1 Kitchen: 1 Basement: 1 Garden: Rear patio area Furnishing: Fully furnished, each bedroom typically includes bed, wardrobe, desk, desk chair, chest of drawers Appliances: Microwave, Washing Machine/ dryer, Fridge Freezer, Electric Cooker & Vacuum Cleaning Parking: On-street (permit required) Utilities: Mains gas, electric, water & sewerage Heating: Gas central heating – Combi Boiler Room Dimensions: Please refer to floor plan Mobile/Broadband Coverage: Check via Ofcom - https://checker.ofcom.org.uk/
Applicants: All tenants must be full-time students at the start of the tenancy. This requirement is in accordance with the proposed new Ground 4A, Schedule 2, Section 8 of the Housing Act 1988, which will be used to regain possession of the property on 30th June 2027.